Property
Beds
2
Full Baths
2
1/2 Baths
1
Year Built
1983
Sq.Footage
1,552
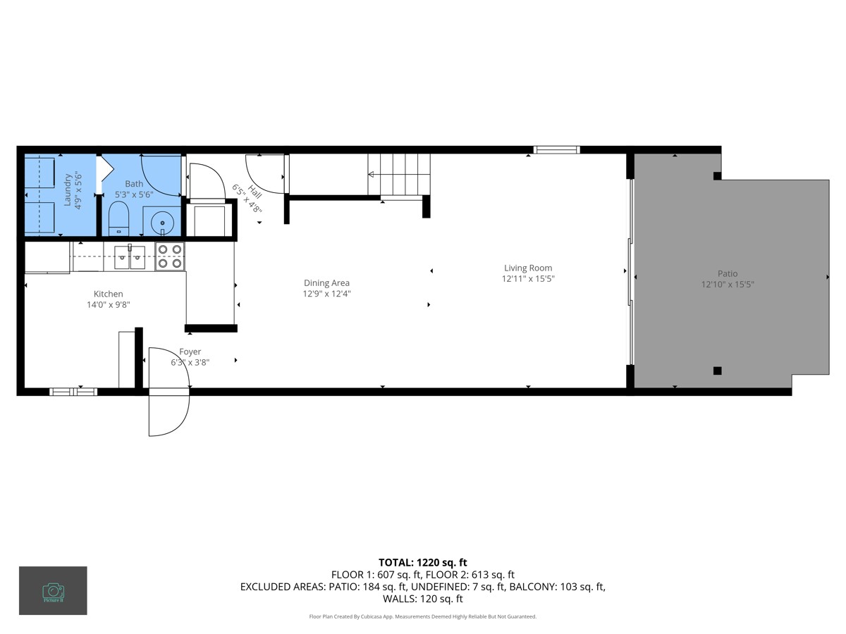
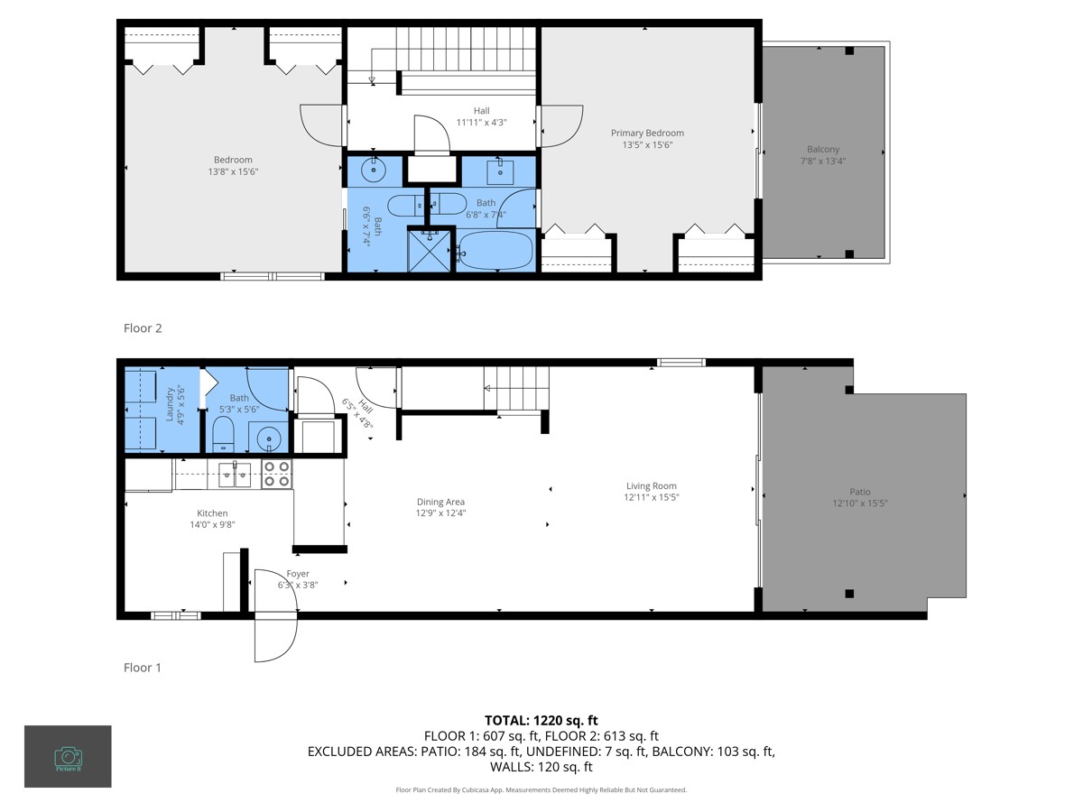
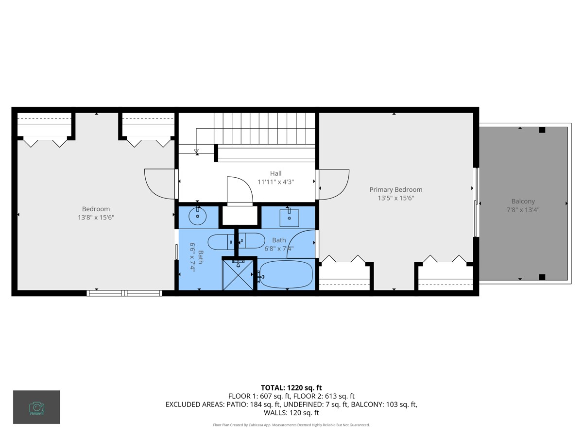
Nestled near some of the area's best restaurants and just moments from the water, this beautifully updated 2-bedroom, 2.5-bathroom home offers incredible potential and effortless, low-maintenance living. Whether you're a snowbird seeking seasonal comfort or looking for a full-time residence, this home is a perfect fit.The spacious main level is filled with natural light--ideal for relaxing or entertaining--while the second level features durable LVP flooring and two generously sized bedrooms both with updated en-suite bathrooms. The primary suite includes access to a private balcony, perfect for enjoying your morning coffee or sunset views. A large back patio offers even more outdoor space for entertaining or unwinding in the fresh coastal air. Additional updates include modern en-suite bathrooms and stainless steel kitchen appliances, so you can move in with ease and peace of mind. Conveniently located near Crab Island, Okaloosa Island, FWB, Destin, and just minutes from shopping, dining, and entertainment in Fort Walton Beach. Note: NO short-term rentals allowed, preserving the tranquility and privacy of this quiet community. System Ages: Roof 2006 HVAC 2009 HVAC Condenser 2022 Water Heater 2025 Kitchen Appliances 2025
Features & Amenities
Interior
-
Other Interior Features
Breakfast Bar
-
Total Bedrooms
2
-
Bathrooms
2
-
1/2 Bathrooms
1
-
Cooling YN
YES
-
Cooling
Ceiling Fan(s), Central Air
-
Pet friendly
N/A
Exterior
-
Garage
No
-
Other Exterior Features
Balcony
-
Patio and Porch Features
Covered, Deck
-
Pool
Yes
-
Pool Features
Outdoor Pool
Area & Lot
-
Lot Size(acres)
0.02
-
Property Type
Residential
-
Property Sub Type
Townhouse
-
Architectural Style
Townhome
Price
-
Sales Price
$325,000
-
Zoning
Resid Multi-Family
-
Sq. Footage
1, 552
-
Price/SqFt
$209
HOA
-
Association
YES
-
Association Fee
$275
-
Association Fee Frequency
Monthly
-
Association Fee Includes
N/A
School District
-
Elementary School
Elliott Point
-
Middle School
Bruner
-
High School
Fort Walton Beach
Property Features
-
Stories
2
-
Sewer
Public Sewer
-
Water Source
Public
Schedule a Showing
Showing scheduled successfully.
Mortgage calculator
Estimate your monthly mortgage payment, including the principal and interest, property taxes, and HOA. Adjust the values to generate a more accurate rate.
Your payment
Principal and Interest:
$
Property taxes:
$
HOA fees:
$
Total loan payment:
$
Total interest amount:
$
Location
County
Okaloosa
Elementary School
Elliott Point
Middle School
Bruner
High School
Fort Walton Beach
Listing Courtesy of Lauren E Mott , Realty ONE Group Emerald Coast
RealHub Information is provided exclusively for consumers' personal, non-commercial use, and it may not be used for any purpose other than to identify prospective properties consumers may be interested in purchasing. All information deemed reliable but not guaranteed and should be independently verified. All properties are subject to prior sale, change or withdrawal. RealHub website owner shall not be responsible for any typographical errors, misinformation, misprints and shall be held totally harmless.

Team
The BobbyJTeam
Call The BobbyJ today to schedule a private showing.

* Listings on this website come from the FMLS IDX Compilation and may be held by brokerage firms other than the owner of this website. The listing brokerage is identified in any listing details. Information is deemed reliable but is not guaranteed. If you believe any FMLS listing contains material that infringes your copyrighted work please click here to review our DMCA policy and learn how to submit a takedown request.© 2024 FMLS.
