Townhome
20 Crossing Lane Unit 69
Santa Rosa Beach , FL 32459
MLS#: 829679
$254,350

Property
Beds
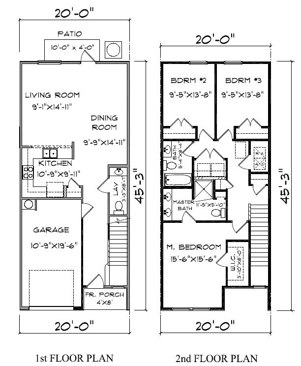
3
Full Baths
2
1/2 Baths
1
Year Built
2019
Sq.Footage
1,542
MODEL HOME NOW OPEN!! AMAZING OPPORTUNITY to own new construction with introductory pricing in South Walton. Located just minutes away from famous CO Hwy 30a, some of the country's best beaches, incredible shopping, and world class dining. Miller's Crossing is in a central location to both Destin, and Panama City Beach, allowing you to enjoy the best of both worlds. Walking distance to Alaqua Unleashed Dog park, Padgett Park, nature trails and public library.. Seller is offering up to $7500 in closing costs with DHI Title and Mortgage Services.
Features & Amenities
Interior
-
Total Bedrooms
3
-
Bathrooms
2
-
1/2 Bathrooms
1
-
Cooling YN
YES
-
Cooling
Ceiling Fan(s), Central Air
-
Heating YN
YES
-
Heating
Electric, Central
-
Pet friendly
N/A
Exterior
-
Garage
Yes
-
Garage spaces
1
-
Construction Materials
Fiber Cement
-
Patio and Porch Features
Patio
-
Pool
No
Area & Lot
-
Property Type
Residential
-
Property Sub Type
Townhouse
-
Architectural Style
Townhome
Price
-
Sales Price
$254,350
-
Zoning
Resid Single Family
-
Sq. Footage
1, 542
-
Price/SqFt
$164
HOA
-
Association
YES
-
Association Fee
$181
-
Association Fee Frequency
Monthly
-
Association Fee Includes
N/A
School District
-
Elementary School
Bay
-
Middle School
Emerald Coast
-
High School
South Walton
Property Features
-
Stories
1
-
Sewer
Public Sewer
Schedule a Showing
Showing scheduled successfully.
Mortgage calculator
Estimate your monthly mortgage payment, including the principal and interest, property taxes, and HOA. Adjust the values to generate a more accurate rate.
Your payment
Principal and Interest:
$
Property taxes:
$
HOA fees:
$
Total loan payment:
$
Total interest amount:
$
Location
County
Walton
Elementary School
Bay
Middle School
Emerald Coast
High School
South Walton
Listing Courtesy of Emily A Natalio , DR Horton Realty of Northwest Florida LLC
RealHub Information is provided exclusively for consumers' personal, non-commercial use, and it may not be used for any purpose other than to identify prospective properties consumers may be interested in purchasing. All information deemed reliable but not guaranteed and should be independently verified. All properties are subject to prior sale, change or withdrawal. RealHub website owner shall not be responsible for any typographical errors, misinformation, misprints and shall be held totally harmless.

Team
The BobbyJTeam
Call The BobbyJ today to schedule a private showing.

* Listings on this website come from the FMLS IDX Compilation and may be held by brokerage firms other than the owner of this website. The listing brokerage is identified in any listing details. Information is deemed reliable but is not guaranteed. If you believe any FMLS listing contains material that infringes your copyrighted work please click here to review our DMCA policy and learn how to submit a takedown request.© 2024 FMLS.
